reabilitação águas santas

localização maia - portugal

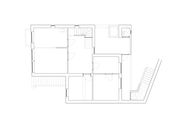
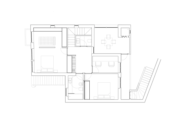
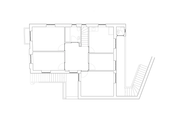
O restauro desta moradia obedecia à seguinte premissa: a casa tanto poderia servir para venda na sua totalidade como arrendada por piso autonomamente. Indo ao encontro desse pressuposto, toda a compartimentação interna teria de possibilitar os dois fins sem comprometer as futuras obras a realizar no espaço, no sentido de dar uma nova vida à moradia que se encontrava num avançado estado de degradação.

Com uma configuração interior bastante recortada, algo típico à época, intentou-se alargar os espaços tanto quanto possível, criando nomeadamente espaços mais francos entre a sala e a cozinha e diluindo-se parcialmente o hall em ambos os pisos.

Estabeleceu-se o andar superior como o piso inalterável do conjunto, tendo sido também o piso principal no projeto original, ajudado pela configuração espacial do exterior, ficando assim o andar inferior com essa versatilidade de se adaptar a ambas as versões pretendidas, onde cozinha e sala de estar facilmente se transformam em mais um quarto com closet, revendo-se apenas o mobiliário proposto, sem colidir com a estrutura.

Aproveitou-se ainda para fechar os vãos do pátio a tardoz com caixilharia, convertendo-o num pátio inglês de apoio ao logradouro e as fachadas foram apenas repintadas num tom verde água, com modificações apenas em panos de parede menores no que respeita aos seus materiais de revestimento.

>