habitação coletiva IHRU

colaboração Arq. João Vilela Arq. Miguel Barroca
localização almada, lisboa - portugal

A proposta define os volumes para os três lotes com leitura clara do exterior, quebrando a fachada com ritmos dinâmicos e elementos distintivos que refletem a utilização interior das habitações. Organiza os principais percursos em redor dos edifícios, apresentando detalhes minimalistas e contemporâneos que podem influenciar futuras construções na Avenida Torrado da Silva.

O projeto cumpre o programa preliminar e as regras locais, equilibrando estratégias construtivas e inovação para maximizar a qualidade em habitação de custo controlado. Os principais desafios incluem conformidade regulatória, integração com o espaço público, gestão do volume construído e controlo de custos.

A solução destaca-se por:

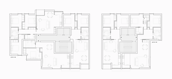
Resolução do programa em seis pisos acima da soleira, para integração, custo e impacto visual;

Logradouros elevados a norte, minimizando diferenças de cota com o espaço público;

Apartamentos com duas fachadas, preferencialmente norte/sul;

Uso honesto de materiais, como betão e alumínio, duráveis e económicos;

Pisos térreos com escala compatível com a paisagem, suportando os volumes residenciais superiores;

Ritmo e repetição, com elementos como grades nas varandas para quebrar monotonia.

A orientação dos edifícios respeita o eixo da Avenida Torrado da Silva, evitando sombreamento a norte. A solução de seis pisos equilibra programa, integração no terreno e custos, quebrando a frente de 70 metros com elementos verticais e planos variados, destacando zonas sociais e extremos. As fachadas brancas integram-se visualmente na paisagem urbana.

Os pisos térreos resolvem diferenças de programa e permitem a repetição dos pisos residenciais nos três lotes, garantindo coerência e identidade. Os logradouros elevados criam espaço para equipamentos e zonas verdes que separam o tráfego pedonal do automóvel, mitigando ruído da estrada e da linha ferroviária. Percursos pedonais conectam a praceta a norte à Rua São João Lourenço Poente, com áreas de contemplação e um parque infantil.

Cada lote possui duas entradas principais, dando acesso a dois blocos residenciais, otimizando a circulação interior e o acesso ao estacionamento. Os apartamentos seguem principalmente orientação norte/sul, favorecendo ventilação cruzada e conforto térmico. A circulação interna é racionalizada, hierarquizando espaços comuns e privados.

As fachadas contrastam sombreamento a sul com maior opacidade a norte. Os materiais utilizados incluem alumínio escovado (grades, varandas e painéis de cozinha), betão aparente no interior, e ETICS exterior para isolamento térmico. Painéis fotovoltaicos produzem eletricidade, a água pluvial é reutilizada na manutenção das áreas verdes, e o estacionamento suporta carregamento de carros elétricos e bicicletas.

A elevada repetição de elementos construtivos garante eficiência, controlo de custos e qualidade. Os pisos residenciais usam módulos pré-fabricados em betão armado, combinando paredes e lajes no local, reduzindo tempo de construção, dependência de mão de obra e custos de acabamento, mantendo interior de betão aparente de alta qualidade.

>