casa silvares I

localização fafe - portugal

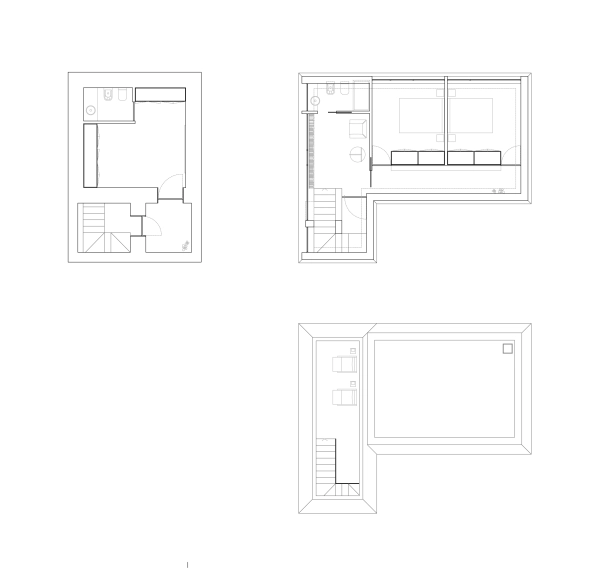
O projeto visa reabilitar uma ruína, onde apenas restaram as paredes em pedra granítica da região. Um piso novo foi criado no aproveitamento de um novo telhado, com o intuito de se respeitar os limites confinantes da casa, mantendo assim o seu caráter mais original e permitindo, contudo, aumentar o espaço interior, no sentido de lhe atribuir a valência de uma casa unifamiliar com respeito às áreas mínimas legais.

Desta forma, no rés do chão fica disposta a sala de estar em comunicação aberta com a kitchenette. Pelo hall de entrada permite-se igualmente o acesso ao piso superior por escada, que é recebida por uma zona de lounge, em ligação com um corredor que distribui para ambos os quartos da casa. No piso inferior de cave, temos ainda um espaço adicional de arrumos, servido por wc.

Na parte mais elevada da cobertura está também previsto um espaço exterior mais recatado por platibandas /muros, para dar lugar a sossegados banhos de sol. São projetadas francas aberturas desde o telhado correspondente ao primeiro piso, de modo a se poder aproveitar a paisagem rural na sua magnitude, bem como captar o máximo de luz solar. No rés do chão, as antigas portas em madeira dão lugar a vitrais com a mesma desejada intenção.

Os lugares de estacionamento são colocados no exterior, contíguos à entrada principal da casa, contendo área de parqueamento para 3 veículos. Os muros de contenção do terreno e o telhado partilham o mesmo acabamento em ferro forjado pintado.

>