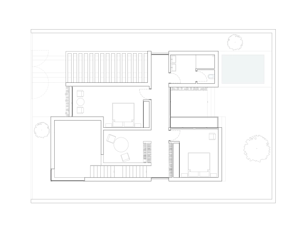
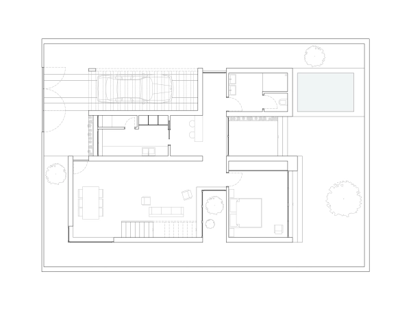
casa natal

localização natal - brasil

A casa nasceu de um loteamento de raiz para construção em Natal, no Brasil. Sem existirem ainda referências arquitetónicas na vizinhança, houve apenas o confinar aos limites do terreno, sem a normal preocupação de encaixe na envolvente, apenas tendo sido assegurado o resguardo possível da casa dada a proximidade futura entre moradias.

Desto modo, aproveitou-se para abrir vãos maiores e de maior privacidade sempre virados para o exterior mais recolhido do jardim ou, então, pontos de fuga estratégicos que menos invadam o espaço da habitação. A ideia é usufruir tanto da natureza do jardim privado como do espaço vazante de inter-vizinhança, com as devidas hierarquias.

É uma casa que convida às leituras na biblioteca, ao convívio franco numa sala de estar ampla e de acesso imediato do exterior (como dita a boa tradição brasileira) e ao recolhimento, em quartos com boa qualidade de evasão.

A área envolvente ajardinada, muito embora residual, permitiu ainda pensar uma pequena piscina para fruição num clima tropical como o do Brasil. Quanto à cor exterior da casa num tom claro azul pastel, tal atende à necessidade de reflexão da luz solar e temperatura.

>