casa gualtar

localização braga - portugal

O cliente pretendia uma casa prática e moderna para esta parcela de terreno inserida num loteamento em Gualtar — Braga. As casas em banda já existentes do conjunto apresentavam todas elas uma estética exterior bastante idêntica mas que iriam exigir do ateliê uma abordagem mais depurada da fachada principal.

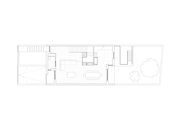
Internamente, resolveu-se alguma falta de luz derivada das empenas laterais cegas com um saguão que dá apoio ao hall do piso superior e vão de escadas, além de dar vida a um canteiro vegetal próximo da entrada principal. Estando todo o entorno perimetral estabelecido pelo conjunto do loteamento, os espaços interiores tiveram apenas de se cingir aos precedentes e organizarem-se do melhor modo dentro dessa “caixa”, atendendo tanto à direção da luz natural como à configuração e dimensão dos vãos de fachada.

O piso principal resultou assim como pretendido num ambiente franco de chegada e distribuição pelos diferentes pisos e espaços, havendo uma correlação interessante entre hall - sala de estar — sala de jantar - cozinha, tornando o espaço amplo e no entanto hierarquizado. Um piso acima, duas suítes com varanda para cada frente e ainda um espaço de escritório perfazem o andar. Já o piso em cave dispõe de 2 lugares de garagem, arrecadação/dispensa, lavandaria e ainda de uma zona de estar exterior semicoberta, por onde se pode aceder ao jardim um nível acima.

>