casa granja

colaboração Arq. Diogo Moreira
localização fafe - portugal

Trata-se de uma casa para um jovem casal se estabelecer. A casa insere-se num loteamento consolidado, numa zona tranquila da cidade de Fafe. As casas envolventes são de estilo clássico, de modo que se optou por respeitar exclusivamente a altimetria do agregado.

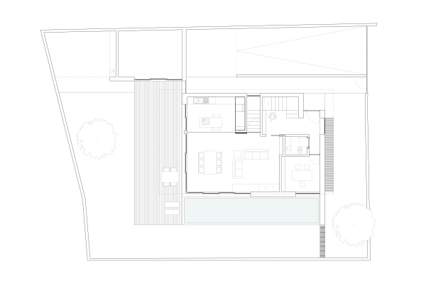
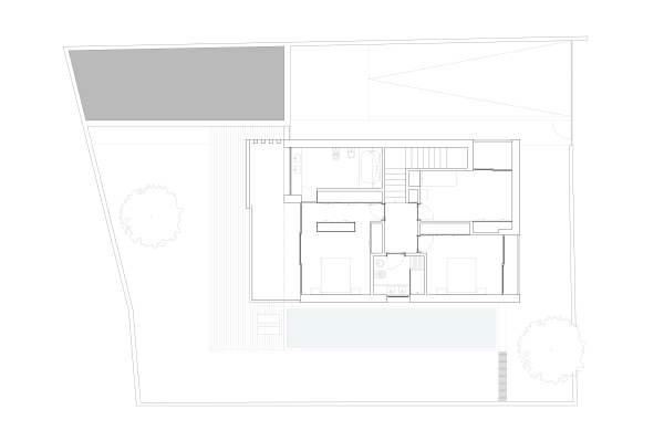
A casa está dividida em dois volumes distintos que constituem os dois pisos da casa + cave. No rés-do-chão funciona a esfera mais social da casa, onde se incluem o escritório, sala, cozinha e we de serviço. Já no andar superior os dois quartos e uma suíte orientada para as traseiras do lote, para usufruição do jardim e maior privacidade.

Ao nível de volumetria, deu-se uso a dois materiais contrastantes, o betão à vista no volume superior, mais incorpóreo, corpo "balançante”, e capoto em tom terra para o piso de entrada, elemento "fixo e telúrico.

>