casa fão

localização fão, esposende - portugal

Esta moradia em Fão integra um loteamento de casas maioritariamente geminadas, tal sendo o caso do presente lote. Uma vez que a linguagem geral não obedece a nenhum tipo de identidade em particular, pretendeu-se imbuir a casa de uma neutralidade formal, para melhor a integrar no conjunto, deixada integralmente em branco, tanto na pintura, gradeamento e caixilharia, com a subtileza de contrastar com a vivacidade própria de decoração interior.

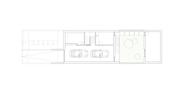
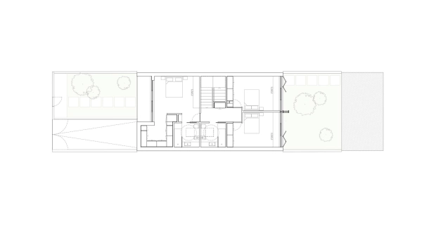
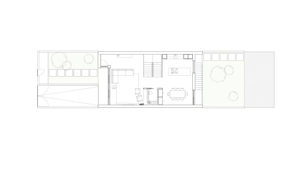
O volume de planta retangular desenvolve-se ao longo de 3 pisos, com semicave, 1º e 2º pisos. Na semicave, à altura do logradouro a tardoz, temos um anexo deixado inteiramente livre para planos futuros e no interior da moradia, um espaço de garagem acedido por rampa desde a cota de rua, uma zona técnica, bem como uma lavandaria contígua ao logradouro. Já no piso principal, tem lugar a sala de estar em face para a entrada, que se dá por um jardim na frente, e cozinha e sala de jantar combinadas a poente, intervaladas da zona de estar pelos acessos verticais e uma casa de banho aprumada pelas do piso superior onde temos então uma generosa suíte com closet e vistas para o jardim na frente e para atrás, a poente, dois quartos servem-se de janelas rasgadas a meia altura, com o recurso a portadas pelo exterior, num recolhimento sóbrio que acompanha o pôr do sol.

>